La Jolla STONE WORK +DECORATIVE METAL WORK


We worked closely with the talented architects and designer of this stunning La Jolla, San Diego home to provide custom ironworks and cut-to-size dimensional stonework. The recently built residence sits ocean-front, with an breathtaking and uninterrupted view of the coast. The iron balcony railings and staircases are hand-forged and finished by our craftsman in Northern Italy, using centuries’ old technique. These delicate, yet resistant iron elements decorate the home without blocking breeze and sunlight. 

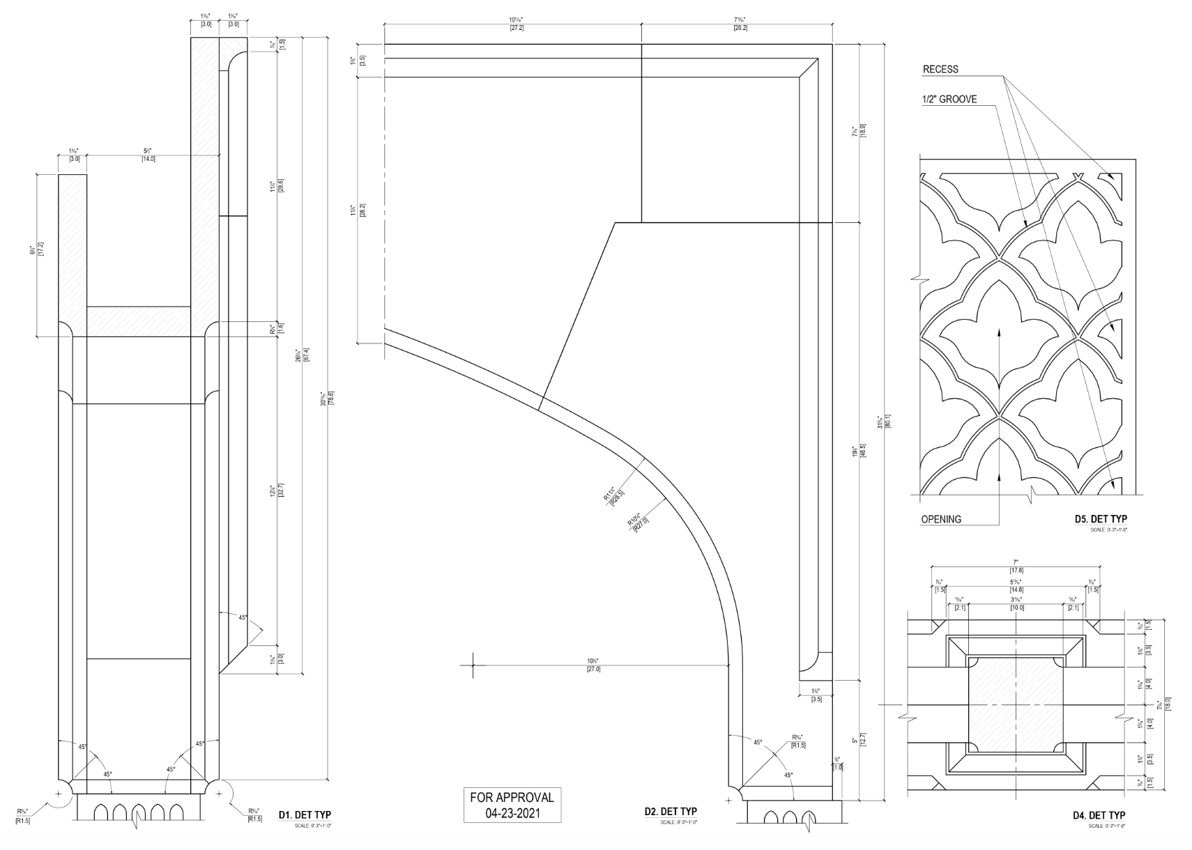
The stone elements we provided are cut and carved from the light and warm Biancone marble. Tasked with replicating the beautiful time-worn look of stone found in older seafront buildings, we hand chiseled and finished each piece of Biancone to achieve a custom, desired “Antiqued” finish. For this stonework, we collaborated with the artisans who complete much of our sculptural projects to assure the elaborate carving and specialty finishes were executed perfectly. 

We feel extremely grateful for the opportunity to have collaborated on this challenging and rewarding project and for how our iron and marble elements fit into the finished design.  Sourced and crafted by skilled Italian artisans, our materials contribute a sense of authenticity to the dreamy Mediterranean design and feel of this property. 

Location: San Diego, CA

Architect: Island Architects

Design: Tony Cristafi

Contractor: SWEIG GENERAL CONTRACTING

Designer: Madeline Stuart




STONEWORK DRAWINGS

STONEWORK PRODUCTION